Vés al contingut
barbacana
taller d'arquitectura
menú
Imatges
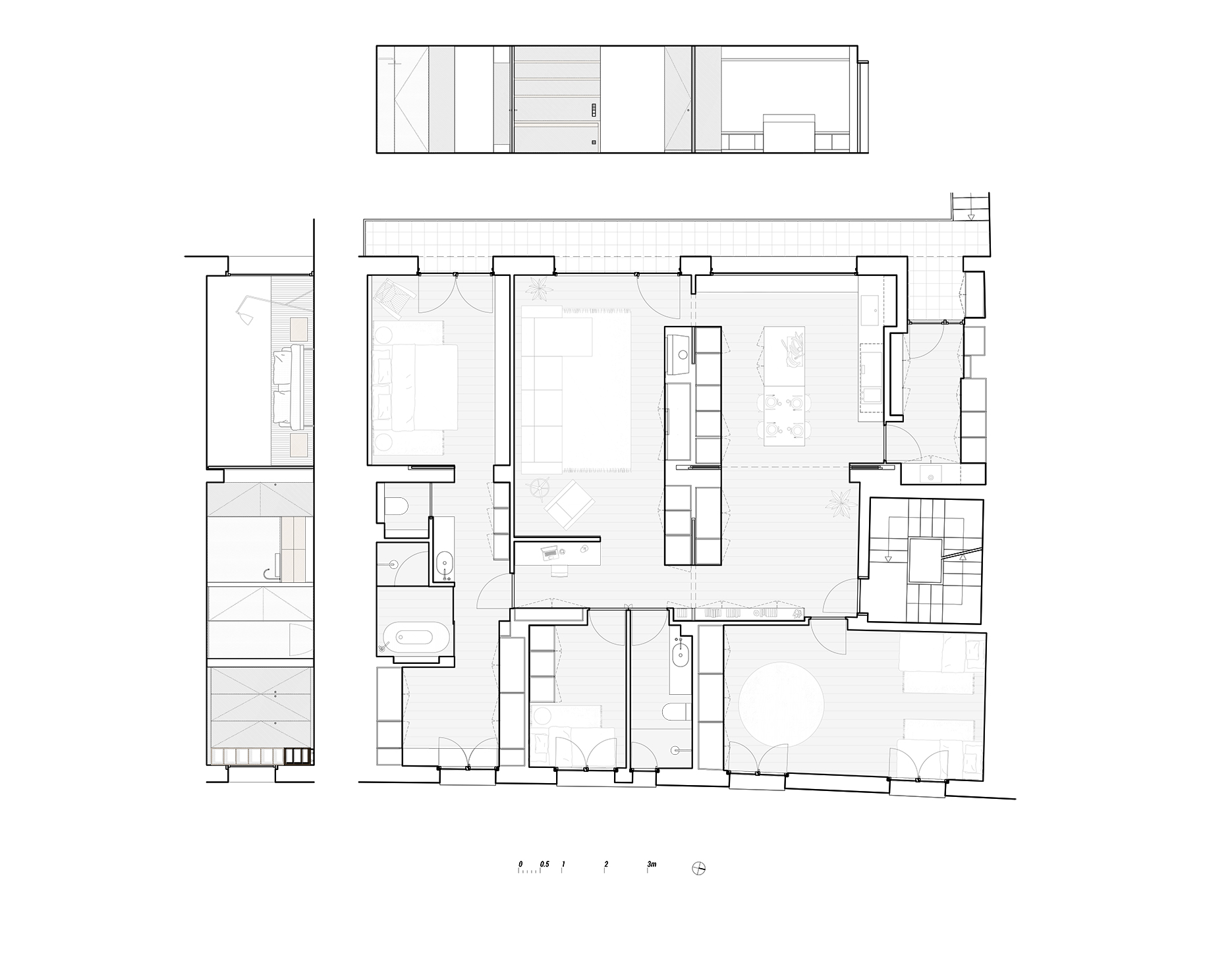
Plànols
+ info
El pis de l’àvia
Close
Projectes
Nosaltres
On som