Vés al contingut
barbacana
taller d'arquitectura
menú
Imatges
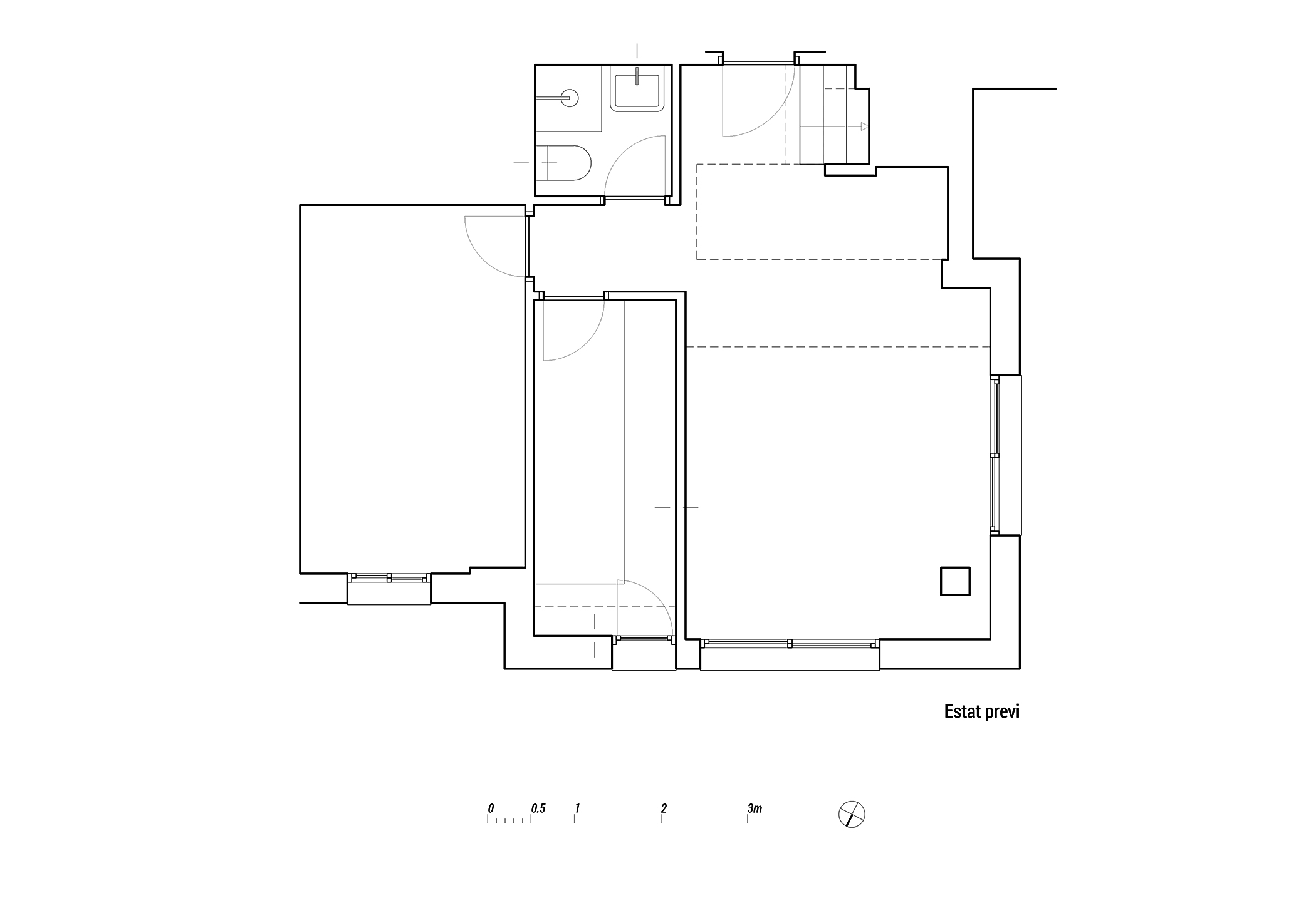
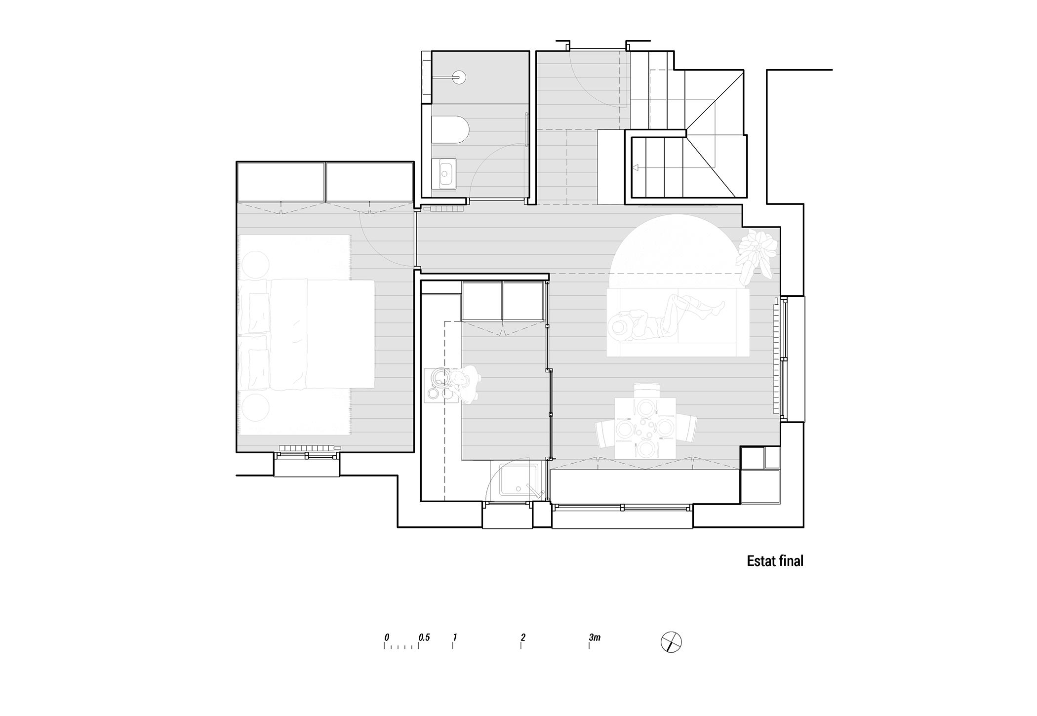
Plànols
+ info
El primer B
Close
Projectes
Nosaltres
On som